Продается дом, 180 кв.м., /2 эт
| Стоимость | 19 630 000 |
|---|---|
| Комнат в доме | 5 |
| Категория земли | ИЖС |
| Тип комнат | раздельные |
| Ремонт | Требуется ремонт |
| Право собственности | Собственник |
| Тип парковки | Парковочное место |
| Кадастровый номер участка | 91:02:004001:1066 |
| Категория земли Avito | Индивидуальное жилищное строительство (ИЖС) |
| Способ связи avito | По телефону и в сообщениях |
| Материал стен (Авито дома) | Кирпич |
| Тип отопления cian | Автономное газовое |
| Тип строения | Дом |
| Площадь, кв.м. | 180 |
| Площадь участка, сот | 4 |
| Этажность | 2 |
| Материал стен | Кирпич |
| Населенный пункт | Севастополь |
|---|---|
| Район города | садоводческое товарищество Пилот |
| Улица | улица Авиаторов |
| Номер дома | 1к91 |
Продам видовой двухэтажный дом в Казачьей бухте. Закрытая охраняемая территория. Площадь дома 180 кв.м. Площадь участка 4.11 сотки. Коммуникации: Вода городская; Электричество; Газ; Канализация.
Дом построен по индивидуальному архитектурному проекту с учётом рельефа местности и специфики региона. В строительстве использовались высококачественные строительные и отделочные материалы. Построен по монолитно-каркасной технологии с заполнением стен газобетонным блоком. При строительстве закладывался большой запас прочности: значительно превышены средние нормы арматуры (как в количестве, так и в качестве), также использовался бетон самых высоких марок.
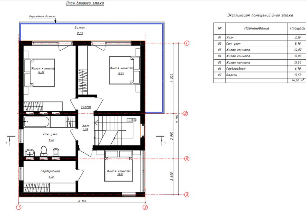
Первый этаж: Прихожая -15кв.м; с/у-10 м.кв; кухня гостиная-40м.кв; гардеробная/подсобное помещение-10м.кв; лестничный холл на второй и третий этажи.
Второй этаж: три спальни 20+гардеробная/25/15 м.кв. с выходом на большой балкон., с/у 10м.кв.
Третий этаж: 60кв.м эксплуатируемая плоская крыша с которой открывается прекрасный вид на город и море.
Инфраструктура района: магазины, школа, детский сад, музейный комплекс 35-батарея, остановки общественного транспорта, а так же несколько пляжей, кафе и др.
Документы РФ. Земельный участок и дом зарегистрированы.







































































