Продается участок, , / эт
| Стоимость | 5 600 000 |
|---|---|
| Ремонт | Требуется ремонт |
| Категория земель Avito (участки) | Поселений (ИЖС) |
| Способ связи avito | По телефону и в сообщениях |
| Тип дома cian | Кирпичный |
| Номер телефона для подключения функционала чатов. выгрузка | 89780173279 |
| Водоснабжение avito | Центральное |
| Канализация avito | Нет |
| Газ avito | Нет |
| Категория земли | ИЖС |
| Площадь участка, сот | 7.3 |
| Населенный пункт | посёлок 3-е отделение Золотой Балки |
|---|---|
| Район города | Балаклавский |
| Улица | улица Сапунгорская |
| Номер дома | 16 |
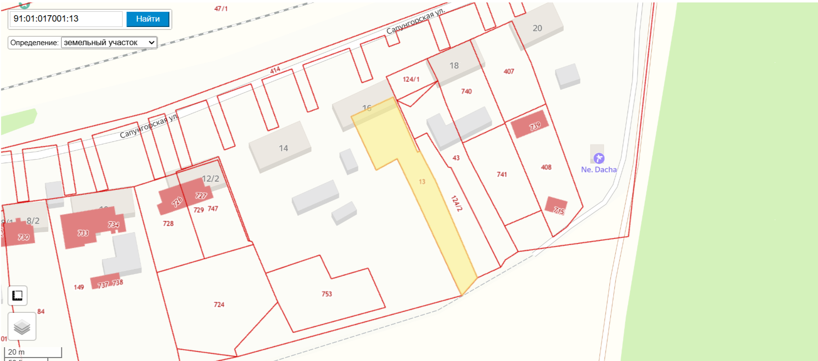
Продам земельный участок 7,3 сот. с однокомнатной квартирой 30кв.м. Коммуникации заведены, электричество, городская вода. На участок есть заезд, есть выход на противоположную сторону. Участок состоит из двух земельных участков,так как имеет сервитут(проход общий для соседей), размеры участка 20*18*15*20 и второй вытянутый 52*8*48*8. Кадастровый номер земли: 91:01:017001:13. На участке можно строиться или выращивать сад, огород и т.д. Вид разрешенного использования: для строительства и обслуживания жилого дома и хозяйственных построек. Собственность физ лица, выписки ЕГРН. С участка открывается красивый вид на виноградники, долину, горы. До объекта асфальтированный заезд, остановка в 3х минутах ходьбы, до 5км 5-10 минут, до центра Балаклавы 10 -15 минут. Тихое уютное местечко.





















































