Продается дом, 31 кв.м., 1/1 эт
| Стоимость | 5 600 000 |
|---|---|
| Комнат в доме | 1 |
| Категория земли | ИЖС |
| Тип комнат | смежные |
| Ремонт | Требуется ремонт |
| Право собственности | Собственник |
| Тип парковки | Открытая во дворе |
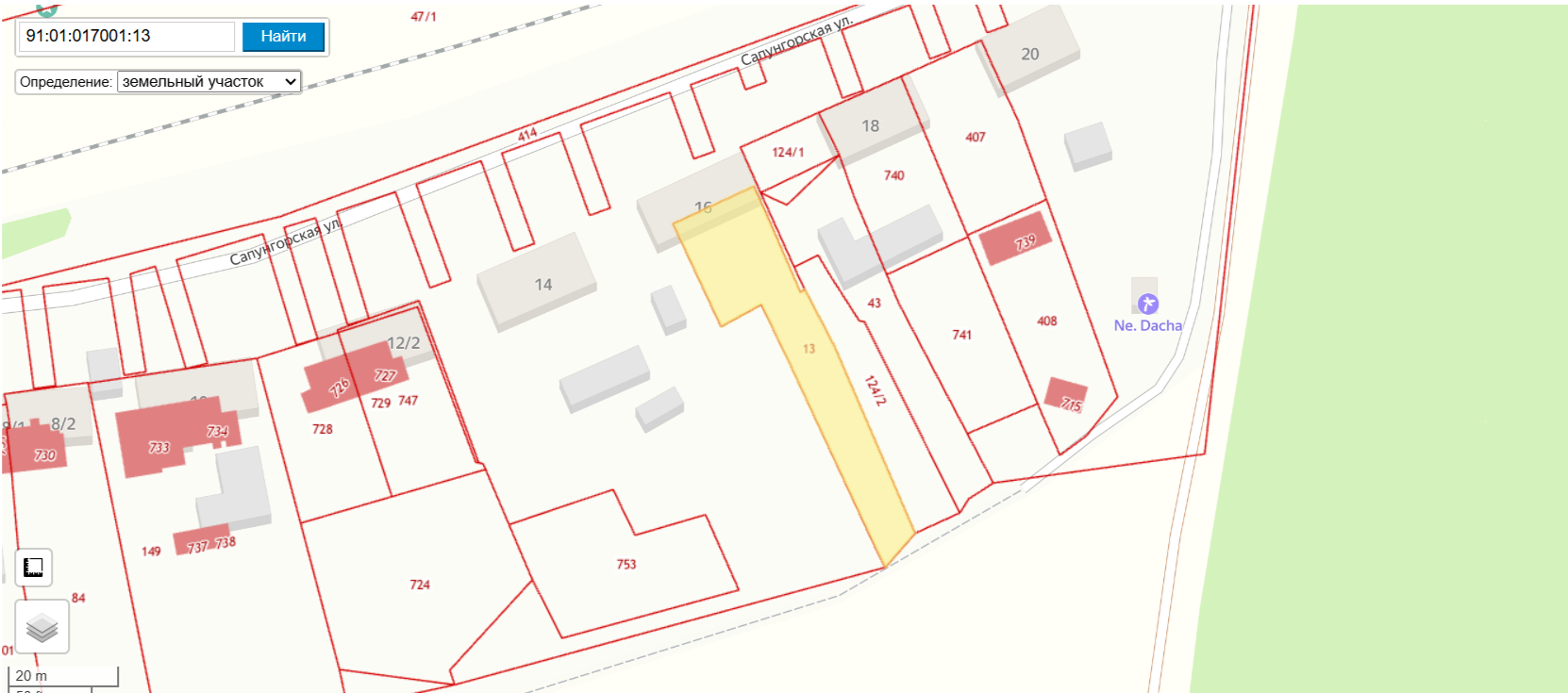
| Кадастровый номер участка | 91:01:017001:13 |
| Этаж | 1 |
| Категория земли Avito | Индивидуальное жилищное строительство (ИЖС) |
| Способ связи avito | По телефону и в сообщениях |
| Материал стен (Авито дома) | Кирпич |
| Тип отопления cian | Печь |
| Тип дома cian | Кирпичный |
| Номер телефона для подключения функционала чатов. выгрузка | +79780173279 |
| Водоснабжение avito | Центральное |
| Канализация avito | Выгребная яма |
| Газ avito | Нет |
| Тип строения | Часть дома |
| Площадь, кв.м. | 31 |
| Площадь участка, сот | 7.3 |
| Этажность | 1 |
| Материал стен | Кирпич |
| Населенный пункт | Симферополь |
|---|---|
| Улица | улица Сапунгорская |
| Номер дома | 16 |
Продам Дом 31 кв.м, 1к квартиру в 4х квартирном жилом доме со своим земельным участком 7,3 сот. Коммуникации заведены, электричество, городская вода. На участок есть заезд, есть выход на противоположную сторону. Участок состоит из двух земельных участков,так как имеет сервитут(проход общий для соседей), размеры участка 20*18*15*20 и второй вытянутый 52*8*48*8. Кадастровый номер земли: 91:01:017001:13. На участке можно строиться или выращивать сад, огород и т.д. Вид разрешенного использования: для строительства и обслуживания жилого дома и хозяйственных построек. Собственность физ лица, выписки ЕГРН. С участка открывается красивый вид на виноградники, долину, горы. До объекта асфальтированный заезд, остановка в 3х минутах ходьбы, до 5км 5-10 минут, до центра Балаклавы 10 -15 минут. Тихое уютное местечко.



















































